Mehr anzeigen zum Thema Ausstattung
Ausstattung
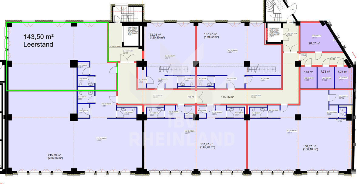
Büroeinheit im I OG im Neubau im sog. alten Faßlager:
- open space
- Teppichboden mit Bodenkanälen
- Serverraum, CAT 7 Verkabelung und Glasfaseranschluss vorhanden
- energieeffiziente Beheizung durch Fernwärme
- hochwertige LED Beleuchtung
- moderne offene Teeküche mit Spülmaschine, Mikrowelle und Kühlschrank
- moderne Sanitäranlagen (2 Anlagen vorhanden - entgegen der Darstellung im Grundriss)
- Parkplätze ausreichend vorhanden:
Tiefgarage 80,00 € netto/Stellplatz monatlich
öffentlich zugänglicher PkW-Platz: 20,00 €/Platz monatlich netto
Alle genannten Preise sind netto-Angaben zzgl. der gesetzl. U-St. von z.Z. 19 %
Da es sich im Sinne der GEG um ein denkmalgeschütztes Objekt handelt, ist ein Energieausweis nicht erforderlich.
- open space
- Teppichboden mit Bodenkanälen
- Serverraum, CAT 7 Verkabelung und Glasfaseranschluss vorhanden
- energieeffiziente Beheizung durch Fernwärme
- hochwertige LED Beleuchtung
- moderne offene Teeküche mit Spülmaschine, Mikrowelle und Kühlschrank
- moderne Sanitäranlagen (2 Anlagen vorhanden - entgegen der Darstellung im Grundriss)
- Parkplätze ausreichend vorhanden:
Tiefgarage 80,00 € netto/Stellplatz monatlich
öffentlich zugänglicher PkW-Platz: 20,00 €/Platz monatlich netto
Alle genannten Preise sind netto-Angaben zzgl. der gesetzl. U-St. von z.Z. 19 %
Da es sich im Sinne der GEG um ein denkmalgeschütztes Objekt handelt, ist ein Energieausweis nicht erforderlich.
Mehr anzeigen zum Thema Beschreibung
Beschreibung
Bei dem historischen Objekt handelt es sich um das Areal der Weinbrennerei Dujardin.
Im sog. alten Faßlager wurden moderne Büroetagen mit industriellem Charme errichtet.
Die Einheit befindet sich zur Seite Innenstadt Uerdingen.
Im sog. alten Faßlager wurden moderne Büroetagen mit industriellem Charme errichtet.
Die Einheit befindet sich zur Seite Innenstadt Uerdingen.
Mehr anzeigen zum Thema Lage
Lage
Das Objekt liegt zentral in Uerdingen.
Über die Autobahnen A57 erreicht man in ca. 20 Minuten den Düsseldorfer Flughafen. Auch die umliegenden Städte wie Köln, Duisburg, Neuss, Mönchengladbach und Venlo sind schnell erreichbar.
Die Fußgängerzone und der Bahnhof von Uerdingen ist fußläufig erreichbar. Direkt vor dem Gebäude befindet sich eine Haltstelle des ÖPNV.
Hotels einfacher Kategorie befinden sich in Uerdingen z.B. auf der Uerdinger Straße oder in 10 Fahrminuten zu erreichen das Landhaus Milser.
Über die Autobahnen A57 erreicht man in ca. 20 Minuten den Düsseldorfer Flughafen. Auch die umliegenden Städte wie Köln, Duisburg, Neuss, Mönchengladbach und Venlo sind schnell erreichbar.
Die Fußgängerzone und der Bahnhof von Uerdingen ist fußläufig erreichbar. Direkt vor dem Gebäude befindet sich eine Haltstelle des ÖPNV.
Hotels einfacher Kategorie befinden sich in Uerdingen z.B. auf der Uerdinger Straße oder in 10 Fahrminuten zu erreichen das Landhaus Milser.
Mehr anzeigen zum Thema Sonstige Angaben
Sonstige Angaben
Das Objekt wird provisionsfrei im Auftrag des Eigentümers angeboten.
Vereinbaren Sie doch einfach einen Besichtigungstermin!
Alle Informationen in diesem Angebot beruhen auf Angaben, die wir von der Eigentümerin erhielten. Für Richtigkeit und Vollständigkeit übernehmen wir keine Gewähr. Die Grundrisse müssen nicht mit der aktuellen Raumaufteilung übereinstimmen und sind unmaßstäblich. Für Flächenangaben wird keine Gewähr übernommen.
Vereinbaren Sie doch einfach einen Besichtigungstermin!
Alle Informationen in diesem Angebot beruhen auf Angaben, die wir von der Eigentümerin erhielten. Für Richtigkeit und Vollständigkeit übernehmen wir keine Gewähr. Die Grundrisse müssen nicht mit der aktuellen Raumaufteilung übereinstimmen und sind unmaßstäblich. Für Flächenangaben wird keine Gewähr übernommen.
Mehr anzeigen zum Thema Sonstige Angaben
Energieausweis
- Nutzungsart
- Gewerbe
- Energieausweis
- es besteht keine Pflicht!