Mehr anzeigen zum Thema Ausstattung
Ausstattung
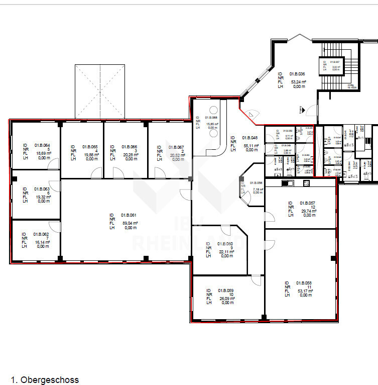
Diese Büroeinheit befindet sich im I OG und ist wie folgt ausgestattet:
- 439,09 m² Gesamtfläche (inkl. Nebenflächenanteil)
- verschiedene Büroraumgrößen
- Sonderausstattung oder ein Flächenumbau sind in Abstimmung möglich
- der vorherige Nutzer führte Funktionsprüfungen durch, dadurch sind die Räume mit gesicherten Starkstromanschlüssen versehen (siehe Bilder)
- teilweise klimatisierte Büroräume
- Verkabelung über Fensterbankkanäle
- Miete ab 6,50 €/m² mtl. netto
- CAT 7 Verkabelung teilw. auch CAT 5
- Glasfaseranschluss
- Teppichboden
- Teeküche
- WC-Einheiten
selbstverständlich:
- 24/7 Zugang
- Objektservice und Ansprechpartner vor Ort
- ca. 250 Stellplätze anmietbar, diese befinden sich auf dem Grundstück
und auf dem gegenüberliegenden Parkplatz des Parks
- 439,09 m² Gesamtfläche (inkl. Nebenflächenanteil)
- verschiedene Büroraumgrößen
- Sonderausstattung oder ein Flächenumbau sind in Abstimmung möglich
- der vorherige Nutzer führte Funktionsprüfungen durch, dadurch sind die Räume mit gesicherten Starkstromanschlüssen versehen (siehe Bilder)
- teilweise klimatisierte Büroräume
- Verkabelung über Fensterbankkanäle
- Miete ab 6,50 €/m² mtl. netto
- CAT 7 Verkabelung teilw. auch CAT 5
- Glasfaseranschluss
- Teppichboden
- Teeküche
- WC-Einheiten
selbstverständlich:
- 24/7 Zugang
- Objektservice und Ansprechpartner vor Ort
- ca. 250 Stellplätze anmietbar, diese befinden sich auf dem Grundstück
und auf dem gegenüberliegenden Parkplatz des Parks
Mehr anzeigen zum Thema Beschreibung
Beschreibung
Das Business Park verfügt über modern gestaltete und helle Büroräume.
Ausreichend Parkplätze sind auf dem Gelände anmietbar.
Ausreichend Parkplätze sind auf dem Gelände anmietbar.
Mehr anzeigen zum Thema Lage
Lage
Der Business Park befindet sich in einem grünen Umfeld, direkt neben dem Stadtpark Fischeln sowie dem Campus Fichtenhain und dem Büropark Krefeld-Fichtenhain.
Den Autobahnanschluss A44 Krefeld-Fichtenhain (AS 25) erreicht man in 3 Minuten.
Die Lage Fichtenhain hat sich in den letzten Jahren zunehmend zu einem bevorzugten Ziel von international tätigen Unternehmen entwickelt. So sind in ca. 15 Autominuten z. B. der Düsseldorfer Flughafen und das Messegelände Düsseldorf erreichbar.
Der direkt vor dem Objekt gelegene Stadtpark ist optimal für mittägliche "Auszeiten".
Den Autobahnanschluss A44 Krefeld-Fichtenhain (AS 25) erreicht man in 3 Minuten.
Die Lage Fichtenhain hat sich in den letzten Jahren zunehmend zu einem bevorzugten Ziel von international tätigen Unternehmen entwickelt. So sind in ca. 15 Autominuten z. B. der Düsseldorfer Flughafen und das Messegelände Düsseldorf erreichbar.
Der direkt vor dem Objekt gelegene Stadtpark ist optimal für mittägliche "Auszeiten".
Lichtdurchflutete und funktionale Büroeinheiten im Business Park Krefeld
Mehr anzeigen zum Thema Sonstige Angaben
Sonstige Angaben
Das Objekt wird provisionsfrei im Auftrag der Eigentümerin angeboten.
Vereinbaren Sie doch einfach einen Besichtigungstermin!
Die genannten Preise verstehen sich als Nettopreise
zzgl. der gesetzlichen U-Steuer von z.Z. 19 %.
Alle Informationen in diesem Angebot beruhen auf Angaben, die wir von der Eigentümerin erhielten. Für Richtigkeit und Vollständigkeit übernehmen wir keine Gewähr. Die Grundrisse müssen nicht mit der aktuellen Raumaufteilung übereinstimmen und sind unmaßstäblich. Für Flächenangaben wird keine Gewähr übernommen.
Vereinbaren Sie doch einfach einen Besichtigungstermin!
Die genannten Preise verstehen sich als Nettopreise
zzgl. der gesetzlichen U-Steuer von z.Z. 19 %.
Alle Informationen in diesem Angebot beruhen auf Angaben, die wir von der Eigentümerin erhielten. Für Richtigkeit und Vollständigkeit übernehmen wir keine Gewähr. Die Grundrisse müssen nicht mit der aktuellen Raumaufteilung übereinstimmen und sind unmaßstäblich. Für Flächenangaben wird keine Gewähr übernommen.
Mehr anzeigen zum Thema Sonstige Angaben
Energieausweis
- Nutzungsart
- Gewerbe
- Energieausweis
- Bedarfsausweis
- Energieausweis gültig bis
- 28.06.2031
- Baujahr lt. Energieausweis
- 1992
- Endenergieverbrauch (Wärme)
- 117,4 kWh/(m²a)
- Endenergieverbrauch (Strom)
- 6,6 kWh/(m²a)